Распространенные вопросы
Типичные вопросы обычно касаются того, как определить подлинность техпаспорта, какие «водяные знаки» на нем предусмотрены
Второй по важности станет проблема восстановления утраченной документации
Как проверить технический паспорт при совершении сделок с квартирой
Заказать экспертизу для установления подлинности технического паспорта – дорого и хлопотно. Если возникли сомнения, то существует простой пошаговый алгоритм, позволяющий с высокой вероятностью судить о достоверности документации.
В описательной части присутствует информация об адресе квартиры, владельце и инвентаризационной стоимости. Также прилагаются планы, расчеты, а венчает пакет подпись проводившего измерения лица, с расшифровкой фамилии, указанием должности, места работы. Данные заверяются штампом организации или печатью.
Как восстановить документ
В случае утраты документации придется все начинать сначала. Дело это непростое, но осуществимое. Подается заявление с сопутствующими справками и свидетельствами (правом собственности, паспортом владельца). При необходимости приглашается специалист на составление плана квартиры с обмером помещений. Оплатив стоимость услуг, хозяин жилища получает на руки новый техпаспорт на квартиру.
Игровые автоматы на деньги с бонусом за регистрацию в Украине
Одним из преимуществ почему игроки выбирают онлайн казино в Украине – это возможность получить бездепозитный бонус за регистрацию. Это такой вид бонуса, который игрок может получить за простую регистрацию на сайте даже без пополнения депозита.
Любой бездепозитный бонус за регистрацию необходимо отыгрывать, что значит, что у вас не будет возможности сразу вывести полученные деньги на свой счет. Зачастую отыгрыш не так прост, как кажется на первый взгляд
Вот почему так важно читать условия получения и отыгрыша бонуса перед его получением
Инструкция как получить бездепозитный бонус за регистрацию
Чтобы 100% получить бонус за регистрацию для игры в игровые автоматы на деньги, которые вы в дальнейшем сможете вывести, вам необходимо выполнить ряд некоторых условий:
Найти онлайн казино, которое выдает бездепозитный бонус за регистрацию.
Прочитать в условиях получения бонуса, что он выдается за регистрацию (без каких-либо дополнительных условий).
Обязательно ознакомиться с условиями отыгрыша бонуса, и убедиться, что условия отыгрыша реально осуществить
Также не забудьте обратить внимание на срок отыгрыша.
Обратить внимание на игру в какой игровой автомат распространяется этот бонус.
Убедиться, что ранее вы не регистрировались на сайте данного онлайн казино (двойная регистрация на сайтах любых онлайн казино запрещена, и в противном случае ведет к блокировке обеих аккаунтов).
Зарегистрироваться на сайте онлайн казино, заполняя все необходимые поля настоящими данными.
После регистрации пройти процедуру аутентификации аккаунта, которая подразумевает под собой отсылку сканов документов администрации онлайн казино (это необходимо для получения возможности в дальнейшем выводить выигрыш на свой счет).. После выполнения всех этих пунктов вы получите свой бездепозитный бонус на бонусный счет, и получите возможность начать его отыгрывать
Обязательно уложитесь в срок его отыгрыша. В случае успешного отыгрыша и прохождения процедуры аутентификации, у вас будет возможность вывести деньги на свой счет. И это для многих возможность заработка в онлайн казино без вложений. Возможно, получится и у вас
После выполнения всех этих пунктов вы получите свой бездепозитный бонус на бонусный счет, и получите возможность начать его отыгрывать. Обязательно уложитесь в срок его отыгрыша. В случае успешного отыгрыша и прохождения процедуры аутентификации, у вас будет возможность вывести деньги на свой счет. И это для многих возможность заработка в онлайн казино без вложений. Возможно, получится и у вас.
Порядок и тонкости оформления
До того, как получить экземпляр техпаспорта на свою квартиру, определяем цель – для чего это все нужно. Данный аспект важен, так как влияет на объем предоставляемого пакета документов. Наиболее частыми бывают следующие ситуации:
- Квартира арендуется у муниципальных органов власти. Для подтверждения прав на жилплощадь будет достаточно предоставить номер лицевого счета в ЖКХ (ТСЖ) и свои документы.
- Гражданин, вступающий в наследование жилья, прилагает средства идентификации личности (по числу наследников), а также свидетельство о смерти дарителя. Не помешает и нотариальное подтверждение правомочности претензий на квартиру.
- При приватизации разрабатывается технический паспорт особой формы. Но для его получения, опять же, нужно подтвердить право собственности.
- В случае изменения конфигурации помещений, переноса отдельных комнат существенным оказывается статус проведения работ (выполнены самовольно, по согласованию, необходимо разрешение).
- Оформлением занимается не сам владелец, а третье лицо. Потребуется доверенность, заверенная нотариусом.
- Документацию решили обновить. Для этого приглашается техник, чтобы проверить фактические размеры комнат, длины коридоров, рассчитать площади.
Подготовка необходимых документов
Процесс оформления техпаспорта на квартиру начинается со сбора справок, свидетельств и требуемых подтверждений. Их набор зависит от конкретной ситуации и предполагаемого объема работ. Кроме того, по общепринятой процедуре, основной документ на жилище обновляется через каждые 5 лет, но чаще это происходит непосредственно перед сменой собственника.
Понадобится перерасчет площадей или нет – это тоже влияет на сроки и объем работ. Обобщенно у подателя заявления должны быть:
- удостоверение личности, прав на жилплощадь;
- заверенные нотариусом свидетельства (для наследников);
- действующий технический паспорт (если он выдан, и необходимо внести изменения).
А уже после этого можно обращаться в соответствующие структуры. Подавать сформированный пакет документации и ждать решения.
Стоимость процедуры
Узнать, сколько стоит сделать техпаспорт для малогабаритной квартиры, достаточно просто. Сложнее учесть возможные нюансы оформления: срочность, объем выполняемых работ, конкретный район или регион размещения квартиры. Начинаются взаимоотношения с БТИ с оплаты госпошлины. Ее размер стандартный – 900 рублей. Далее возможны варианты.
Так, оформление в Санкт-Петербурге (средняя квартира в 50 квадратных метров) за 10 дней обойдется в 1300 рублей, за ускоренный выпуск (3 дня) – 3900 рублей. Каждая дополнительная услуга «потянет» еще больше, это необходимо учитывать при расчете затрат на получение техпаспорта.
Подача заявления на получение техпаспорта
Рассмотрим один из вариантов подачи заявления, самый простой. Заказ оформляет владелец недвижимости, для него предусмотрено 2 способа: через МФЦ или непосредственно в БТИ. В заявлении обязательно указывается причина (цель) получения документации – продажа, перепланировка.
Бланк заявления в БТИ
В МФЦ заявителю выдадут стандартный бланк, который после заполнения, вместе с требуемыми справками и свидетельствами, передадут в БТИ. Поэтому первый путь более «длинный». При обращении непосредственно в техинвентаризацию удобнее согласовать сроки проведения работ, вызов техника для измерения помещений (если это требуется). Какой способ выбрать – решать вам.
Срок оформления
Затраты времени на процесс зависят от запросов клиента, сложности работ, а также того, куда (и кем) подавалось заявление.
Быстрее всего получить техпаспорт в БТИ. В среднем, это от 14 до 21 дня. За срочность придется доплатить, иногда значительно. Подобные услуги предоставляют коммерческие учреждения. Они же берут на себя сбор необходимых справок и подтверждений, разумеется, не бесплатно.
Получение
Получение техпаспорта на квартиру происходит в МФЦ или БТИ – в той структуре, в которой заявитель оформлял запрос. В готовом формуляре должны содержаться следующие сведения:
- адрес расположения жилья;
- данные о владельце недвижимости;
- стоимость по инвентаризации;
- краткое описание жилища.
Детально о процедуре получения можно узнать из Приказа Министерства Экономического развития, Жилищного и Гражданского кодексов РФ.
Подробнее о требованиях к составлению техплана

Техплан и техпаспорт – два различных документа, которые служат для разных целей. Техпаспорт представляет собой описание технических характеристик здания или помещения. Он необходим при продаже недвижимости, получении разрешений на строительство и реконструкцию. Технический паспорт содержит информацию о площади, этажности, материалах строительства и других параметрах объекта.
Техплан же является частью технического плана участка земли, на котором расположено здание или сооружение. Основным назначением кадастрового техплана является определение границ участка и его топографических особенностей. Это документ, который содержит план построек и разбивку участка на зоны.
Таким образом, техпаспорт и техплан – это два различных документа, которые отличаются своими целями и содержанием.
Теперь давайте поговорим о требованиях к составлению кадастрового техплана. Отличие техплана от техпаспорта заключается в том, что в техплане должны быть указаны границы участка и его территориальные особенности. Кроме того, техплан должен содержать план построек и размещение объектов на участке.
Нужен техплан для того, чтобы определить права собственности на земельный участок и имущество, находящееся на нем. Также техплан может понадобиться для регистрации прав собственности, получения государственных услуг и других юридических действий.
Составление техплана должно производиться в соответствии с действующим законодательством Российской Федерации. Техплан должен быть подготовлен специалистом, имеющим соответствующую квалификацию и опыт работы.
| Техпаспорт | Техплан |
|---|---|
| Описание характеристик здания или помещения | Описание границ участка и его территориальных особенностей |
| Используется при продаже недвижимости и получении разрешений на строительство | Используется для определения прав собственности на земельный участок и имущество |
Таким образом, техплан и техпаспорт – два различных документа, которые отличаются по своей цели и содержанию. Техплан представляет собой детальное описание земельного участка и его особенностей, а техпаспорт – характеристики объекта недвижимости.
Нужен ли Технический паспорт
Прежде чем написать эту статью, я посмотрела несколько других сайтов, на которые заводит ваш поисковый запрос. Я не думаю, что авторы этих статей намеренно хотят запутать читателя, просто дают устаревшую информацию, копируя ее друг у друга.
Ведь большинство сайтов имеют задачу продажи рекламы, а отнюдь не выдача актуальной информации для читателя.
А ведь 02.01.2017 года действует Федеральный закон 218 “О государственной регистрации недвижимости” (дополняется и изменяется два раза в год), который определил новый порядок оформления объекта недвижимости и прав на него.
И теперь для целей кадастрового учета и регистрации прав на объект недвижимости Технический паспорт не используется.
Для целей кадастрового учета здания (дома), помещения (квартиры, комнаты) необходим Технический план, который изготавливает кадастровый инженер.
Он же и ставит объект недвижимости на кадастровый учет.
То есть в ЕГРН – Единый государственный реестр недвижимости вносятся все данные об объекте и присваивается уникальный кадастровый номер. И только после этой процедуры можно зарегистрировать права на объект недвижимости.
Технический паспорт на квартиру при ее продаже
Технический паспорт на квартиру иногда все-таки применяется в сделке с недвижимостью.
Как правило это бывает в ипотечной сделке, с применением кредитных средств банка.
У каждого банка свой перечень документов на объект залога.
К тому же, именно Технический паспорт может запросить независимый оценщик. Ведь технический паспорт содержит необходимую для него информацию:
- дату постройки
- материал стен и перекрытий
- высота потолков
- площадь балконов и лоджий
- тепло- и водоснабжение
- перепланировки ( изменение конфигурации и площади комнат)
- переустройства ( изменение расположения коммуникаций, перенос “мокрых точек”, изменение назначения помещения)
- и другие,
нужные для оценки рыночной стоимости, характеристики.
Именно Технический паспорт позволяет сличить фактическую квартиру с “законной”, то есть выявить не узаконенные перепланировки и переустройства.
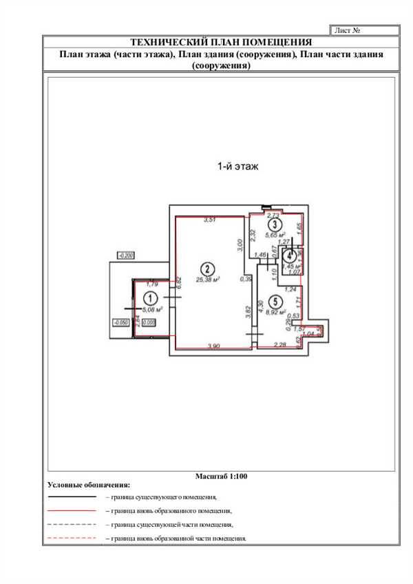
Страница из Технического паспорта. Площадь квартиры с расшифровкой по комнатам
Планировка помещения. Поэтажный план
Как получить Технический паспорт на квартиру
Технический паспорт на объекты недвижимости изготовляют Бюро технической инвентаризации.
Техник лично осмотрит квартиру и сделает замеры площадей.
Сроки изготовления Технического паспорта от 3 до 30 рабочих дней. Чем быстрее – тем дороже.
Срок действия технического паспорта – 5 лет. Но если его запрашивает банк или независимый оценщик – они могут требовать его обновления. И придется выполнить их условия.
Нужен ли Кадастровый паспорт при продаже недвижимости
Дополнительно о Кадастровом паспорте читайте в статье: Нужен ли Кадастровый паспорт.
Всегда рада разъяснить. АвторМоя страница во ВК
Как действовать по шагам
Алгоритм действий для получения техпаспорта выглядит следующим образом:
- Визит в выбранную организацию для получения консультации, уточнения необходимых мероприятий, перечня документов.
- Подготовка пакета нужных бумаг (иногда достаточно сделать копии, взять документы, находящиеся дома, а иногда придется посетить определенные госинстанции).
- Оплата госпошлины. Произвести оплату можно в отделениях БТИ через платежные терминалы, в любом отделении банка или с помощью безналичного перевода (оформление через госуслуги).
- Заполнение заявления. Подходящий бланк (форма № 3 или 4), а также образец заявления для получения технического паспорта нежилого или жилого помещения, можно получить у сотрудника БТИ или МФЦ.
- Передача документов и заявления. Сотрудник принявший документы должен составить расписку, по которой заявитель сможет получить техпаспорт.
- Получение. В указанный день проводится выдача готового техпаспорта.
Как получить технический паспорт дома
При оформлении технического документа для дома потребуется приглашение специалиста к месту расположения объекта недвижимости. Это связано с тем, что в техпаспорте необходимо отразить расположение:
- земельного участка относительно соседей;
- хозяйственных и вспомогательных построек во дворе дома, участке.
Как получить копию
Существует несколько вариантов получения дубликата техпаспорта квартиры. Каждый из них носит заявительный характер и требует личного присутствия собственника жилья.
Как получить технический паспорт на квартиру
Копию утерянного техпаспорта можно получить через управляющую компанию. Организации, обслуживающие многоквартирные дома имеют в своем распоряжении технический паспорт всего дома с поэтажной экспликацией. При определенных условиях для собственника может быть изготовлен и выдан дубликат.
Восстановление
Если вы не знаете, как восстановить техпаспорт квартиры, можно обратиться за консультацией в ближайшее отделение БТИ или МФЦ. Среди основных правил можно выделить следующие:
- изготовление дубликата производится по личному заявлению собственника или его законного представителя (по нотариальной доверенности);
- техпаспорт восстанавливается только по документам без выезда специалиста, если утерянный документ был не старше 5 лет;
- оформление заявления о восстановлении и оплату госпошлину можно осуществить дистанционно через портал госуслуг.
Что важнее: техплан или техпаспорт?

Как было упомянуто ранее, технический паспорт и технический план — это документы, которые необходимы для различных целей и у них разные функции
Важность каждого из этих документов зависит от целей, для которых они используются
Технический паспорт является основным документом, который описывает технические характеристики объекта недвижимости и его параметры. Он может потребоваться при продаже, передаче, аренде или иных операциях с недвижимостью. Технический паспорт гарантирует, что объект соответствует определенным стандартам качества, безопасности и прочности.
Технический план, с другой стороны, является более детальным документом, который содержит информацию об объекте недвижимости, его технических характеристиках, материалах, используемых в конструкции, а также графическое представление и планировку помещений. Он может потребоваться для проведения ремонта, реконструкции, перепланировки или для получения разрешения на строительство.
Если же требуется ремонт, реконструкция или строительство, то важен технический план. Оба документа могут потребоваться при получении разрешения на использование помещения в определенных целях
В целом, можно сказать, что каждый документ важен для своих целей и они не могут заменять друг друга
Важно понимать, что недостаток одного из этих документов может привести к серьезным проблемам в будущем. Поэтому рекомендуется тщательно изучать требования и соблюдать все правила при оформлении технических документов для объектов недвижимости
В чем главные отличия?
Говоря о том, чем отличается техпаспорт от техплана, важно рассмотреть несколько характеристик этих документов, среди которых назначение, срок действия и многое другое
Назначение
Использование техпаспорта необходимо в следующих ситуациях:
- совершение юридических сделок с объектами недвижимости;
- сделки, связанные с наследственными обязательствами и их передачей;
- выделение долей или раздел собственности между несколькими гражданами;
- организация капитального ремонта и внесение изменений, на которые требуется получить разрешение;
- оформление некогда жилого объекта в нежилое.
Технический же план используется для:
- постановки объекта на учет в кадастре;
- получения прав на использование жилого объекта или участка земли;
- ввода строения в пользование;
- предъявления в суде, если имущество связано с судебными разбирательствами.
В техническом паспорте содержится подробная информация об имуществе, а также инвентаризационная стоимость объекта. В техническом же плане отражена информация о технических параметрах постройки, расположении здания, координатах помещений внутри дома, а также его графическое описание.
Кто оформляет?
Для оформления техпаспорта потребуется обратиться к сотруднику БТИ, который не обязан лично посещать объект. В случае с техпланом работу по оформлению выполняет кадастровый инженер, в обязанности которого входит посещение объекта недвижимости.
Срок действия
Законодательно закреплено, что время действия техпаспорта или техплана безгранично. Однако существуют ситуации, когда технический паспорт придется заменить. Это относится к ситуациям, когда собственником проводилась перепланировка, то есть информация в документе становится неактуальной.
Также, для большего понимания в чем заключаются основные различия, советуем псмотреть следующее видео:
Кто составляет технические планы и паспорта?
1. Геодезисты и топографы
- Геодезисты проводят геодезические изыскания, измеряя расстояния, углы и высоты объектов.
- Топографы осуществляют топографическую съемку, создавая карты и планы местности.
На основе данных, полученных геодезистами и топографами, составляются технические планы для регистрации недвижимого имущества.

2. Инженеры и архитекторы
Инженеры и архитекторы также могут быть вовлечены в процесс составления технических планов и паспортов. Они предоставляют технические спецификации и чертежи, которые описывают конструкцию и характеристики здания или сооружения.
3. Государственные органы и эксперты
Государственные органы и эксперты могут также участвовать в составлении технических планов и паспортов. Они проводят оценку объекта недвижимости с точки зрения его технического состояния и соответствия нормативам и требованиям законодательства.
Также возможно привлечение экспертов в специализированных областях, таких как оценка стоимости, экологическая экспертиза или архитектурная экспертиза.
Итак, составление технических планов и паспортов требует участия различных специалистов, включая геодезистов, топографов, инженеров, архитекторов, государственные органы и экспертов. Их коллективные усилия обеспечивают точность и достоверность информации, необходимой для регистрации недвижимости.
Что представляет собой технический паспорт?

Оба документа, технический план или технический паспорт, имеют значительные различия. Паспорт начал использоваться в СССР в конце 70х годов и вплоть до 2012 года применялся при регистрации прав собственности на жилые помещения. Позднее, а именно с 2013 года, ему на смену пришел техплан.
В настоящее время на основании сведений, которые содержатся в техпаспорте, в ЕГРН вносится требуемая информация. Стоит отметить, что выдачей такого рода документов занимается исключительно бюро технической инвентаризации (БТИ).
Существует несколько разновидностей техпаспортов: на здания или на строения. Особенно часто владельцы нуждаются во втором, поскольку именно он относится к документам на жилое недвижимое имущество.

ОБРАТИТЕ ВНИМАНИЕ!
Технический паспорт на строение является частью техпаспорта всей постройки. В идеальной ситуации такой документ составляется сразу при инвентаризации, то есть в процессе сдачи дома в эксплуатацию. В то же время строительная компания не должна оформлять эту документацию после сдачи дома. Эта ответственность полностью ложится на владельца жилья.

Кроме того, документ включает следующие данные:
- год, когда было построено здание;
- адрес, по которому располагается постройка;
- материалы, которые использовались в процессе постройки;
- в том случае, если документ нужно оформить на вторичную постройку, требуется указать, насколько устарели материалы;
- сведения о владельце жилья;
- информация из проектной документации, среди которой тип, в которому отнесена постройка, ее серия и многое другое;
- пригодность жилья для проживания граждан;
- суммарная площадь помещения;
- количество этажей в доме, в котором располагается квартира;
- сведения об удобствах, их наличии;
- информация о том, проводился ли ранее капитальный ремонт;
- экспликация;
- сведения о материалах, которые использовались во время отделочных работ;
- данные, отражающие технические параметры объекта;
- указания о дверях и окнах, а также несущих конструкциях;
- число жилых помещений.
Что такое технический план дома?
Понятие и основные параметры технического плана даны в ст. 24 Закона от 13.07.2015 № 218-ФЗ «О государственной регистрации недвижимости» (далее – Закон).
Технический план дома — это документ, содержащий сведения об объекте и их частей, необходимые для внесения в Единый государственный реестр недвижимости.
Состоит из графической и текстовой частей:
- графическая составляющая технического плана воспроизводит местоположение дома на участке земли посредством определения координат точек его контура и геометрической фигуры, образованной наружными стенами. Если дом имеет несколько этажей, графическая часть будет содержать поэтажный план здания (помещения) каждого из них;
- текстовая часть является описанием сведений и характеристик объекта, необходимых для внесения записи в ЕГРН.
Форма техплана является унифицированной и утвержденной Приказом Минэкономразвития от 18.12.2015 № 953.
https://youtube.com/watch?v=p1OlCaDaxIg%26pp%3DygVy0KLQtdGF0L3QuNGH0LXRgdC60LjQuSDQv9C70LDQvSDQuCDRgtC10YXQvdC40YfQtdGB0LrQuNC5INC_0LDRgdC_0L7RgNGCINCyINGH0LXQvCDRgNCw0LfQvdC40YbQsCDQsiAyMDIzINCz0L7QtNGD
Технический паспорт потерял свою значимость при сделках с недвижимостью ещё в 2013 году. На смену ему пришёл технический план. Этот документ содержит те же данные, что и техпаспорт, а также новые сведения:
Контур координат объекта недвижимости.
Чертёж на основании замеров геодезиста.
Заключение кадастрового инженера.
Приложение, которое включает:
схемы этажей и расположение комнат, квартир на этажах,
документы проектов,
разрешительные акты и прочие документы, подтверждающие законное строительство объекта на территории.
Образцы всех документов, устанавливающих и подтверждающих право на строительство объекта.
Разница между техническим паспортом и техническим планом
Технический паспорт
Технический паспорт — это официальный документ, который содержит информацию о технических характеристиках объекта недвижимости, таких как площадь, количество комнат, этажность и т. д. Он также содержит данные о строительных материалах, использованных при возведении объекта. Технический паспорт выдается при постройке или реконструкции объекта и является одним из обязательных документов, которые должен предоставить собственник при совершении сделки с недвижимостью.
- Содержит информацию о технических характеристиках объекта недвижимости.
- Включает данные о строительных материалах, использованных при возведении объекта.
- Выдается при постройке или реконструкции объекта недвижимости.
- Является обязательным документом при совершении сделки с недвижимостью.
Технический план
Технический план — это документ, который содержит подробную информацию о границах земельного участка и местоположении объекта недвижимости на этом участке. Он также включает сведения о существующих постройках и коммуникациях, которые расположены на участке. Технический план требуется при проведении операций с земельными участками, а также при проектировании новых строений.
- Содержит информацию о границах земельного участка и местоположении объекта недвижимости на нем.
- Включает данные о существующих постройках и коммуникациях на участке.
- Требуется при проведении операций с земельными участками и проектировании новых строений.
- Является необходимым документом для определения прав на земельный участок.
Таким образом, технический паспорт и технический план имеют разную направленность и предназначены для разных целей. Технический паспорт содержит информацию о технических характеристиках недвижимости, в то время как технический план описывает местоположение и границы земельного участка. Оба документа являются важными при совершении сделок с недвижимостью и могут потребоваться при регистрации прав на объекты недвижимости и земельные участки.





















